Close to Mondiran
Où l’art de clôturer une pièce sans la fermer.
BREF J’AI DESSINÉ UNE VERRIÈRE…
Mission : créer une séparation entre deux piéces sans pour autant fermer les espaces.
Lieu : Bizanos
Budget : 8000€
Année : 2025
Délais : 2 mois
Séparer sans enfermer, structurer sans assombrir : tel était le défi de ce projet de cloison-meuble sur mesure, pensée comme une pièce maîtresse de l’espace. Avec en ligne de mire une séparation mi-ouverte, mi-fermée, capable de couper le son mais pas la vue, le tout sans fixation au sol à cause du chauffage au sol. Challenge accepté.
La réponse ? Une cloison autoportante, graphique et fonctionnelle, inspirée de l’univers Mondrian. Un jeu de lignes, de pleins et de transparences qui organise les volumes tout en laissant circuler la lumière.
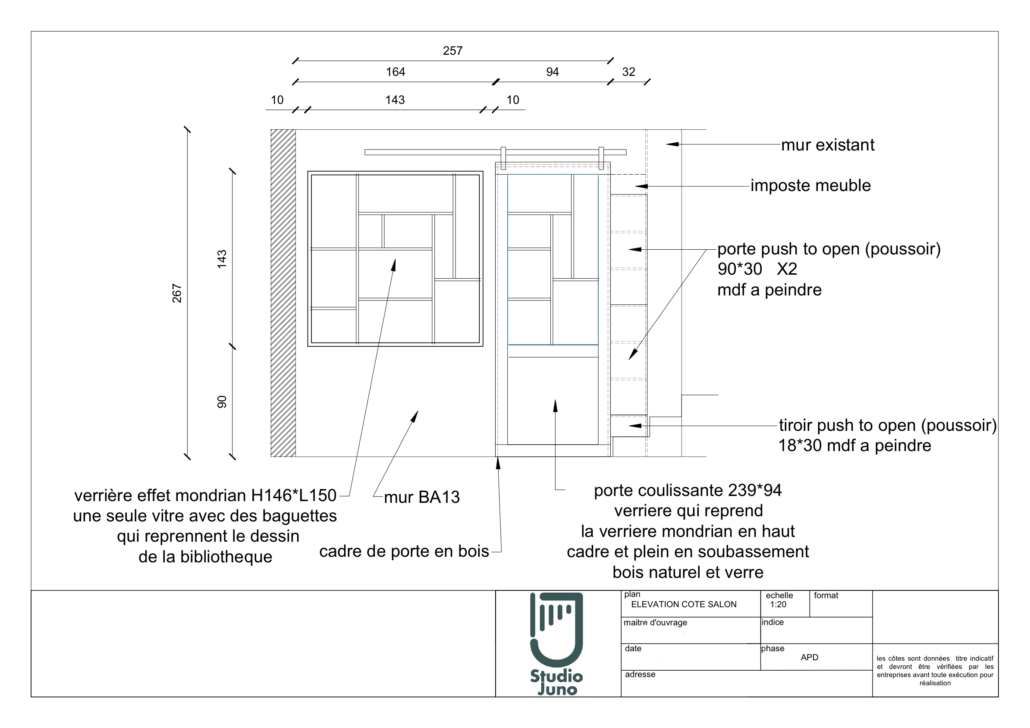
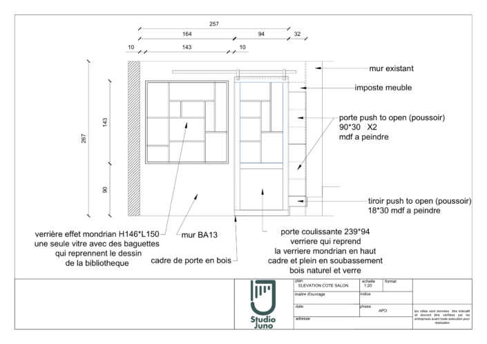
Côté salon, une verrière sur mesure et une porte coulissante hors norme qui disparaît dans la structure une fois ouverte. Côté cuisine, une bibliothèque intégrée, des rangements coordonnés à la cuisine existante et un mur en peinture ardoise pour noter la liste de courses ou les idées du jour (effaçables, évidemment).
Le soubassement, esprit meuble de cuisine, accueille casiers à vin et rangements fermés, tandis que sous l’escalier, des rangements à chaussures push & pull se fondent dans la composition. Des suspensions intégrées viennent ponctuer l’ensemble et souligner le rythme architectural.
Résultat : une cloison qui ne se contente pas de séparer, mais structure, relie et affirme le caractère du lieu. Un projet sur mesure, fonctionnel et audacieux, où chaque détail a trouvé sa place… et son groove
Séparer sans enfermer, structurer sans assombrir : tel était le défi de ce projet de cloison-meuble sur mesure, pensée comme une pièce maîtresse de l’espace. Avec en ligne de mire une séparation mi-ouverte, mi-fermée, capable de couper le son mais pas la vue, le tout sans fixation au sol à cause du chauffage au sol. Challenge accepté.
La réponse ? Une cloison autoportante, graphique et fonctionnelle, inspirée de l’univers Mondrian. Un jeu de lignes, de pleins et de transparences qui organise les volumes tout en laissant circuler la lumière.
Côté salon, une verrière sur mesure et une porte coulissante hors norme qui disparaît dans la structure une fois ouverte.
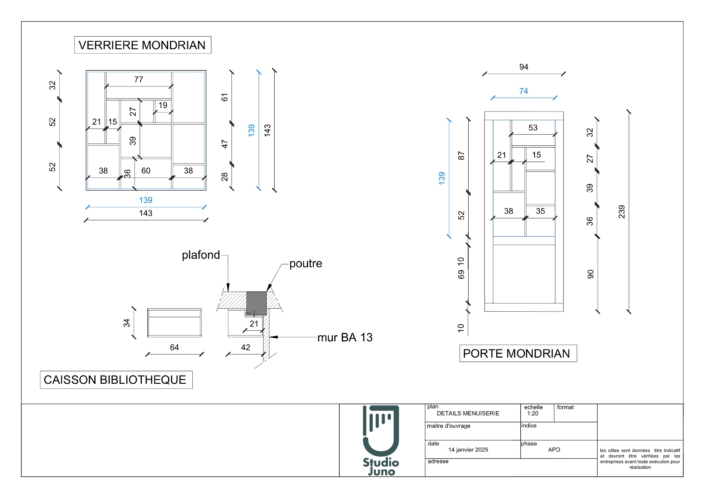
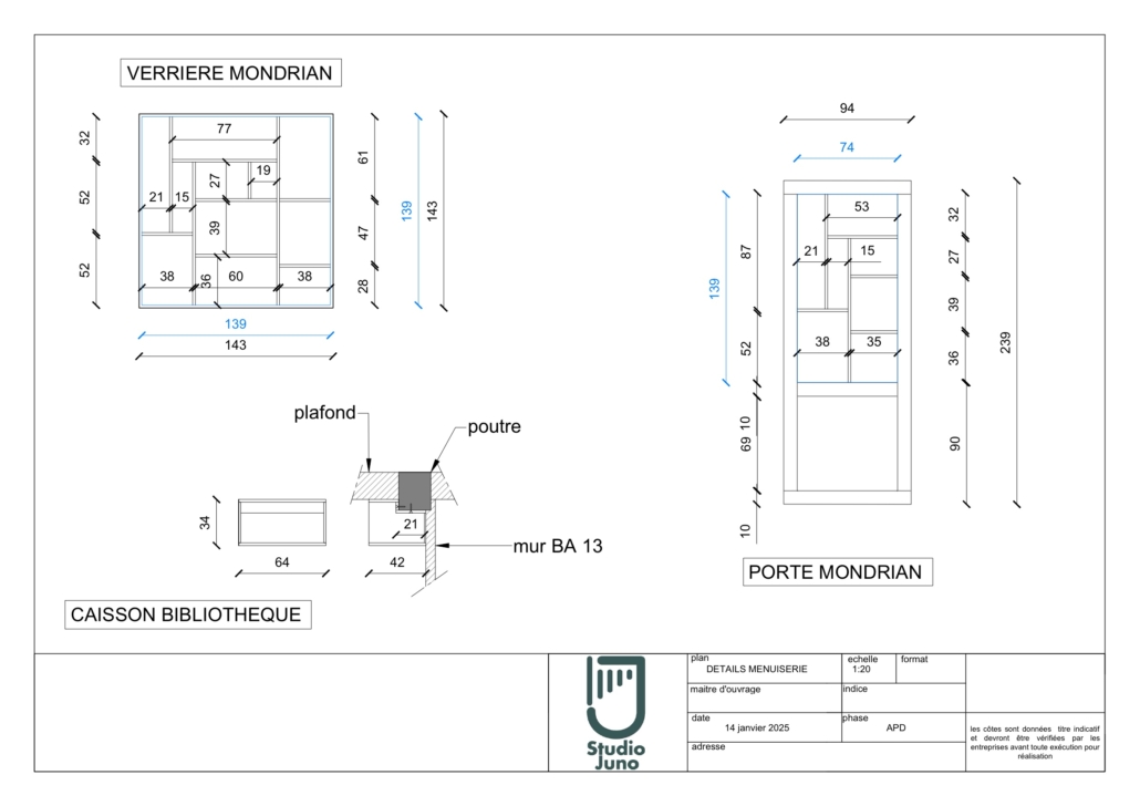
Côté cuisine, une bibliothèque intégrée, des rangements coordonnés à la cuisine existante et un mur en peinture ardoise pour noter la liste de courses ou les idées du jour (effaçables, évidemment).
Le soubassement, esprit meuble de cuisine, accueille casiers à vin et rangements fermés, tandis qu’au niveau de l’escalier côté salon, des rangements à chaussures push & pull se fondent dans la composition.
Des suspensions intégrées viennent ponctuer l’ensemble et souligner le rythme architectural.
Résultat : une cloison qui ne se contente pas de séparer, mais structure, relie et affirme le caractère du lieu. Un projet sur mesure, fonctionnel et audacieux, où chaque détail a trouvé sa place… et son groove